Aperçu
- Mise À Jour:
- octobre 7, 2025
- 126.00 m2
- 126.00 m2
- 4 Chambres
- Catégorie
- Bureau, Immobilier Professionnel
Property Description
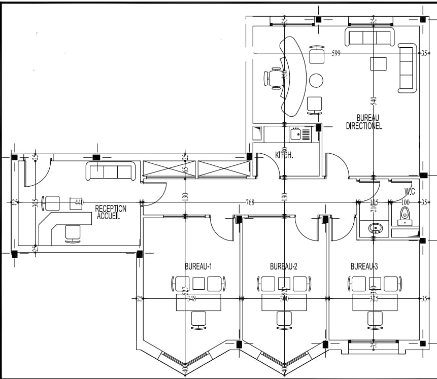
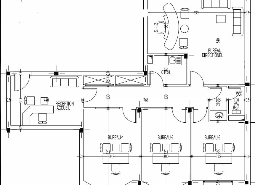
Nous vous proposons à la location un bureau H4 d’une superficie de 126 m², situé au 1ᵉʳ étage d’un immeuble moderne avec ascenseur, au cœur du quartier d’affaires du Lac 1. Ce bien offre un cadre de travail idéal pour les sociétés recherchant confort, accessibilité et professionnalisme dans un environnement prestigieux.
Caractéristiques principales
- Localisation : Lac 1
- Type de bien : Bureau H4
- Superficie : 126 m²
- Étage : 1ᵉʳ étage avec ascenseur
- Loyer mensuel : 2 940 DT HT
Description détaillée
Ce bureau est conçu pour accueillir des activités bureautiques variées. Il dispose d’un hall d’entrée pouvant servir de réception, parfait pour recevoir les clients et visiteurs dans un cadre professionnel et agréable.
L’espace comprend trois bureaux individuels bien éclairés, offrant des conditions de travail optimales pour les collaborateurs. Une salle de réunion spacieuse est également aménagée, idéale pour les échanges professionnels, les présentations ou les réunions d’équipe.
Le bien est complété par deux salles d’eau et une kitchenette fonctionnelle, apportant un confort supplémentaire pour le personnel au quotidien.
Ce bureau est prêt à l’emploi, nécessitant peu d’aménagements, et bénéficie d’un emplacement stratégique au Lac 1, un quartier prisé pour son dynamisme économique, ses commodités et son accessibilité.





