Aperçu
Property Description
Située à El Menzah 1, dans un quartier stratégique et facilement accessible, cette villa à usage bureautique offre un cadre de travail idéal pour les entreprises à la recherche d’un espace à la fois fonctionnel, spacieux et agréable.
Implantée sur un terrain de 980 m² et développant une surface bâtie de 350 m² répartie sur deux niveaux, la propriété séduit par ses volumes généreux, sa luminosité naturelle et ses nombreuses possibilités d’aménagement. Elle constitue une solution parfaitement adaptée pour un siège de société, un cabinet professionnel ou toute activité nécessitant un environnement structuré et productif.
Le rez-de-chaussée s’organise autour d’un grand espace ouvert de type open space, idéal pour accueillir un espace d’accueil ou un espace de travail collaboratif. Il comprend également une cuisine, deux points d’eau ainsi que trois grandes pièces pouvant être aménagées en bureaux individuels ou salles de réunion.
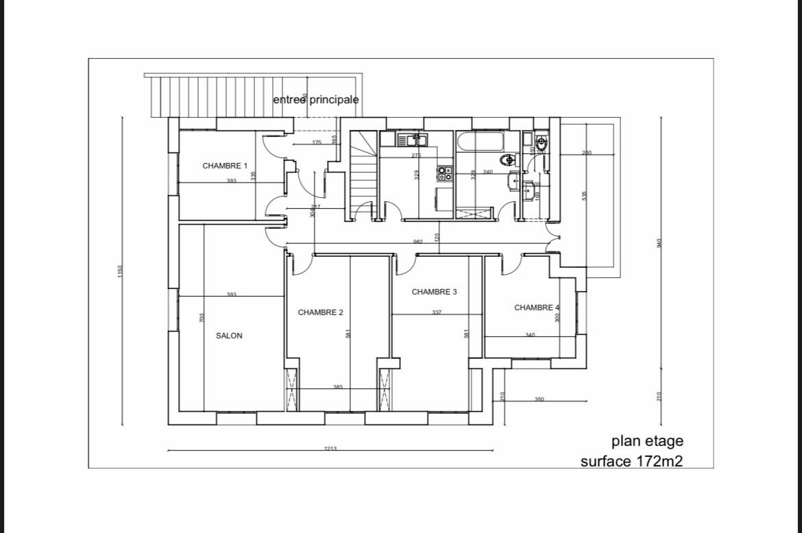
À l’étage, l’espace se prolonge avec cinq pièces spacieuses et lumineuses, offrant un cadre de travail confortable et modulable, accompagnées de deux points d’eau et d’une cuisine supplémentaire, facilitant l’organisation des équipes sur différents niveaux.
L’un des principaux atouts de cette villa réside dans sa flexibilité d’exploitation, avec la possibilité d’aménager chaque étage de manière indépendante ou de conserver une circulation interne, selon les besoins de l’activité.
À l’extérieur, la propriété dispose d’un jardin agréable, d’une terrasse et de plusieurs espaces de stationnement, offrant confort et praticité au quotidien. Le bien est également équipé du chauffage central, garantissant un cadre de travail optimal en toutes saisons.
Proposée à la location au prix de 3 500 DT par mois, cette villa représente une opportunité rare pour les professionnels souhaitant s’installer dans un emplacement stratégique, tout en bénéficiant d’un espace de travail spacieux, modulable et valorisant.














